پلان تالار همایش

۰ نظر
گزارش تخلف
پلان معماری
پلان معماری

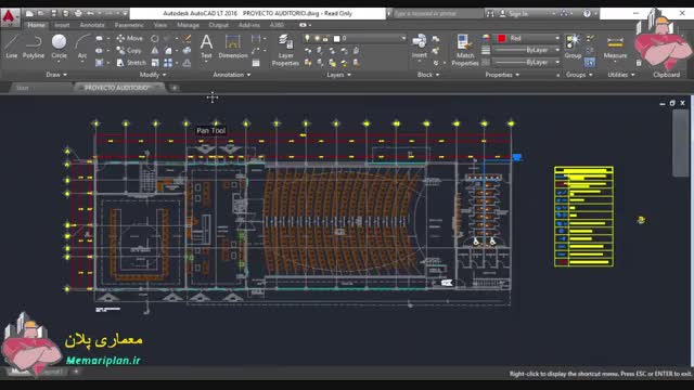
جزئیات پلان تالار همایش  شامل : پروژه پس از اتمام کامل با امکانات و سالن با ظرفیت ۳۲۳ نفر از جمله کافه تریا ، اتاق انتظار ، حمام ، انبار و همچنین متصل یک اتاق ویدئو / کنفرانس / تالار کنفرانس ، ویدئو کنفرانس و ...
لینک پلان : http://memariplan.ir/product/%D9%BE%D9%84%D8%A7%D9%86-%D8%B3%D8%A7%D9%84%D9%86-%D9%87%D9%85%D8%A7%DB%8C%D8%B4/
لینک سایت : http://memariplan.ir/
لینک کانال تلگرام : https://t.me/memariplanir

نظرات

نماد کانال
نظری برای نمایش وجود ندارد.

توضیحات

پلان تالار همایش

۱ لایک
۰ نظر

جزئیات پلان تالار همایش  شامل : پروژه پس از اتمام کامل با امکانات و سالن با ظرفیت ۳۲۳ نفر از جمله کافه تریا ، اتاق انتظار ، حمام ، انبار و همچنین متصل یک اتاق ویدئو / کنفرانس / تالار کنفرانس ، ویدئو کنفرانس و ...
لینک پلان : http://memariplan.ir/product/%D9%BE%D9%84%D8%A7%D9%86-%D8%B3%D8%A7%D9%84%D9%86-%D9%87%D9%85%D8%A7%DB%8C%D8%B4/
لینک سایت : http://memariplan.ir/
لینک کانال تلگرام : https://t.me/memariplanir

آموزش