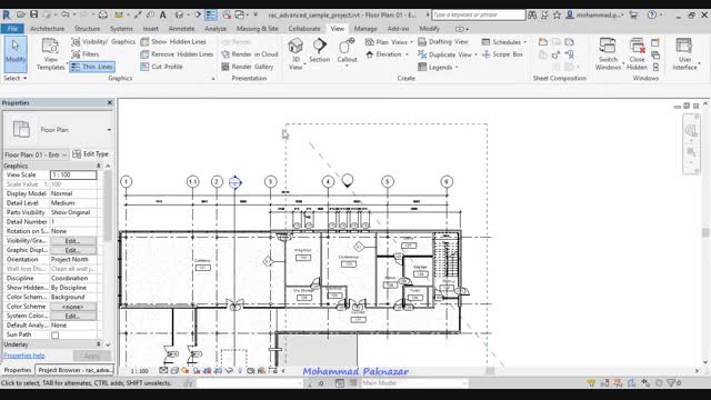
آموزش scope Box در نرم افزار رویت - جلسه چهارم آموزش رایگان در رویت

bim
bim

آموزش scope Box در نرم افزار رویت - جلسه سوم آموزش رایگان در رویت
آموزش های مقدماتی نرم افزار رویت مدرس محمد پاک نظر
برای آموزش های حرفه ای تر و نسخه های بالاتر وارد لینک زیر شوید :
https://bimlearn.org/?p=1819

نظرات

در حال حاضر امکان درج نظر برای این ویدیو غیرفعال است.

توضیحات

آموزش scope Box در نرم افزار رویت - جلسه چهارم آموزش رایگان در رویت

۰ لایک
۰ نظر

آموزش scope Box در نرم افزار رویت - جلسه سوم آموزش رایگان در رویت
آموزش های مقدماتی نرم افزار رویت مدرس محمد پاک نظر
برای آموزش های حرفه ای تر و نسخه های بالاتر وارد لینک زیر شوید :
https://bimlearn.org/?p=1819

آموزش